104 – 17533 64 Avenue, Surrey, BC, V3S 1Y8

$20 psf Base Rent
17533 64 Avenue, ,

Overview

  • Updated On:
  • May 20, 2026
  • 1 Bathroom
  • 2,300 ft2 Size
  • Year Built: 2005

Warehouse for Lease – Surrey (Cloverdale)

3,407 SF  + Mezzanine | CD-Zoned Flex Space

Located steps from Hwy 15 with seamless connections to Hwy 1, Hwy 10, and Fraser Hwy. Just a short walk to Cloverdale Fairgrounds, parks, and local amenities. A strong opportunity for businesses needing a functional space in a highly accessible Cloverdale location.

This CD-zoned industrial unit (with IL – Light Impact Industrial permitted) offers:

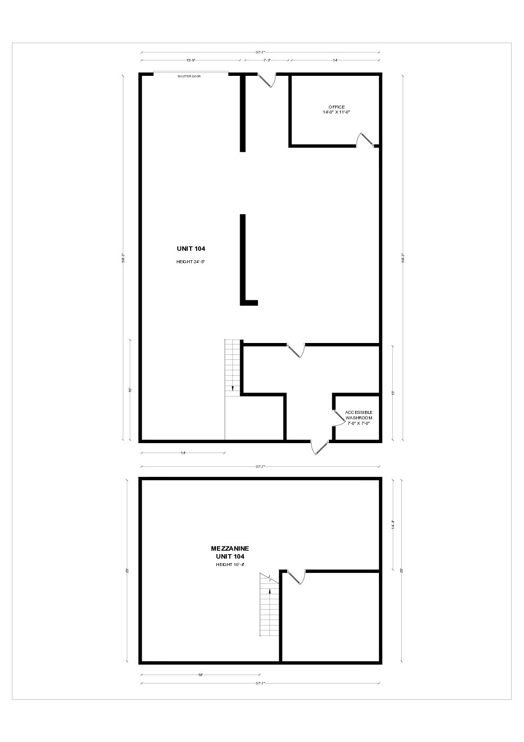
  • 3,407 SF of total space, including approx. 2,300 SF warehouse and 1,107 SF mezzanine
  • Private offices and an accessible washroom
  • 100 AMP / 3 Phase electrical service
  • Grade-level loading with 24’5” clear ceiling height
  • Well maintained, professionally managed

Property Highlights:

  • Size: 3,407 SF (2,300 SF warehouse + 1,107 SF mezzanine)
  • Year Built: 2005
  • Zoning: CD (Comprehensive Development) / IL (Light Impact Industrial)
  • Condition: Professionally managed, well-maintained
  • Walk Score: 70 (Very Walkable)
  • Monthly Rent (Est.): $6,402.25 + GST
    • Net Rent: $20.00 psf
    • Additional Rent: $8.59 psf

Centrally positioned in Cloverdale — convenient by foot, bike, or vehicle.


 

This property is proudly managed by our team on behalf of one of our valued clients   If you’re searching for a new business location, Joe Gill can represent your interests as a tenant. While he is not the landlord’s agent here, he can show you this space and help you compare it with other available options.

🤝  Reach out to Joe and start the conversation today.

 

Address: 17533 64 Avenue
City:
State/County:
Zip: V3S 1Y8
Country: Canada
Property Id: 23555
Price: $20 psf Base Rent
Property Size: 2,300 ft2
Bathrooms: 1
Year Built: 2005
External Construction: Concrete Tilt
Structure Type: Cement
Other Features
Ample Exposure
Centrally Located
Developing Area
Exterior Storefront
High Ceilings
Signage Opportunity

Energy Certificate

Payment Calculator

$1.00
per month
  • Principal and Interest
  • Property Tax
  • HOA fee
  • Private Mortgage Insurance
$ 0.08

Map

Transport
Supermarkets
Schools
Restaurants
Pharmacies
Hospitals

Floor Plans

Floor Plan

Property Reviews

No reviews found.
You need to login in order to post a review

Similar Listings

<a href="https://pivotwestcommercial.ca/property_action_category/leased/" >LEASED</a>
<a href="https://pivotwestcommercial.ca/property_action_category/managed/" >MANAGED</a>
LEASED
$20 psf Base Rent

107 – 17533 64 Avenue, Surrey, BC, V3S...

2 BA
3,120 ft2
<a href="https://pivotwestcommercial.ca/property_action_category/leased/" >LEASED</a>
<a href="https://pivotwestcommercial.ca/property_action_category/managed/" >MANAGED</a>
LEASED
<a href="https://pivotwestcommercial.ca/property_action_category/leased/" >LEASED</a>
LEASED

Compare Listings

Joe Gill